Päijänne 20 saunamökki

Päijänne 20 saunamökki on todellinen tilaihme. 20 kerrosneliön tilaan on saatu mahtumaan kaikki tarpeelliset saunamökin toiminot ja vähän enemmänkin.

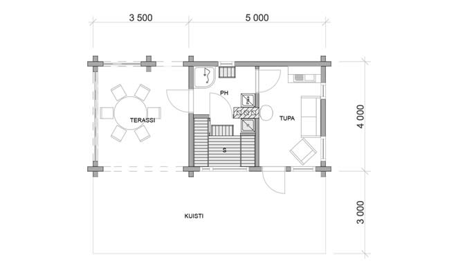
Kerrosala 20 m2, huoneistoala 16,5 m2

Saunamökin suunnitelman hinta
Pääsuunnitelmat 450 €
Asemapiirros 500 €
Rakennesuunnitelmat 500 €
(Hinnat sisältävät alv. 24 %)

Päijänne 20 saunamökki

Mallissa on edustuskokoluokan saunatila vastakkain istuttavilla lauteilla, josta ison ikkunan kautta avautuvat maisemat järvelle. Suihkutila on tilankäytöltään tehokas ja mahdollistaa myös vesipadan sijoittamisen tilaan. Saunatuvassa on minikeittiö ja tilaa vaikka majoittaa mökkivieraita.

Päätyterassi antaa suojaisen tilan saunan jälkeiselle vilvoittelulle myös sadepäivinä. Tämä saunamökki voidaan toteuttaa myös lautarakenteisena vaihtoehtona ja pulpetti- tai harjakattoisena. Malli toimii myös mainiosti ensivaiheen mökkinä mikäli päärakennus halutaan toteuttaa vasta myöhemmin.

 

Pyydä lisätietoja saunamallista